Type: Construction of Industry, Services and Trade building
Client: ENOMAC, Lda.
Location: Vagos, Portugal
Status: Ongoing
Project Author: Maria Fradinho
Team: Cristina Paião, Daniel Antunes, Ivan Dušević, Sara Garcia
Project Date: 2024 – 2025
Plot Area: 5602 m2
Implantation Area: 5423 m2
Construction Area: 7401 m2
3D Artist: Alan Costa
This project aims to build an industry, services and trade building, in a Horizontal Property, located in the Soza Business Zone, in Vagos, in the center of Portugal.
Given its theme and location, the architecture project acknowledges a solid volume, which occupies the entire plot on which it is located, with more than five thousand and four hundred square meters of plot area and whose location is isolated and quadrangular shaped, with four public facades.
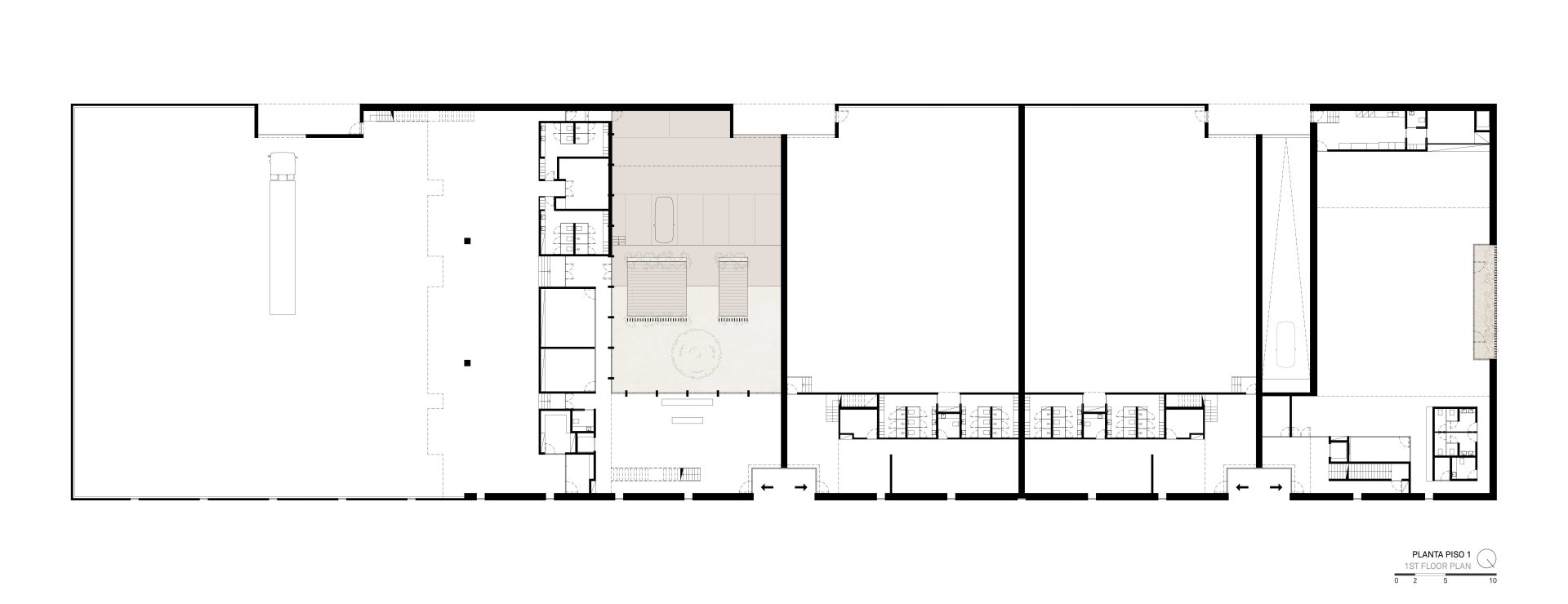
With a height of twelve meters on two floors above and one below the threshold level, for car parking, the building is distributed in plan with the separation into four fractions, three of which for distinct firms and the fourth for two firms shared on the same fraction (one on each floor), in a total of five distinct fractions.
This distribution of fractions is noticeable in the marking of the two entrance negatives on the north/main elevation, with each entrance serving two fractions.
These negatives allow the longitudinality of the architectural piece to be broken, while assuring the due dignity to the entrances of the fractions, since here the business component intends to be highlighted to the detriment of the industrial one.
The north elevation acknowledges, in addition to the entrance negatives, a set of vertical openings, which “tear” the elevation and create a rhythm that allows a smoother understanding of the whole, as it is a 140 meters long building.
The facades are materialized in trapezoidal sheet metal, gray in color, integrating with the pre-existing materiality. However, the lightness and elegance of the openings design gives it a sophisticated and imposing image, with a clear statement of style comparing to the area where it is located.
The south elevation receives the technical entrances to the industrial warehouses, for loading and unloading heavy vehicles, making it a discreet and less expressive elevation.
The west elevation is distinct by the strong presence of a steel lattice 11 meters wide, and the same height as the building, which allows a glimpse of the large opening that precedes it and which communicates with the two shared fractions of the fourth part.
This large opening exposes the most distinct use of the entire complex, namely an event space, which is distributed over the first floor and the terraced roof, energizing that elevation with a life that is unusual in that business area.
The first fraction receives the corporation Enomac, which occupies half of the plot area. This fraction is designed with criteria for enhancing the interior spaces, which face to a common, versatile and multifunctional outdoor patio, allowing the company to combine everyday working moments with playful moments of sharing between employees and friends of the company.
Inside, a large double-height lobby welcomes customers, who are also received by the large opening facing south and overlooking the outdoor patio, with pleasant direct sunlight.
The interiors are designed in volumes covered in polycarbonate, where light flows, but where the privacy is assured. Open transition spaces encourage sharing and coexistence areas, in a company that wants to be inclusive and united.
The interior elevation of the industrial warehouse isn’t neglected, serving as a showcase to the office spaces. The company is one alone and the team is united through the architectural composition – the spaces communicate and encourage sharing and collaboration.
With a prefabricated concrete structure combined with steel elements, and the composition of gabled roofs by each fraction, the building aims to assure compliance with the needs imposed for the various uses, ensuring quality construction.
More than an architectural exercise, designing a company means programming its functional structure, planning the geometry of that company’s interhuman contacts and defining the strategy of the ideology of that activity.
Soza’s Business Building emerged as a solid, and elegant architectural piece, with strong convictions, but open to exploration and research; which promotes a participatory style and open communication, without losing its autonomy and perseverance.

